Bilocale in vendita

Forlì, Via Tripoli - Foro Boario
€ 125.000
2 locali 2 locali
60 Mq 60 Mq
1 bagno 1 bagno

Bilocale in vendita

Forlì, Via Tripoli - Foro Boario

Descrizione annuncio

FORLI': ZONA FORO BOARIO BILOCALE CON GARAGE LOCATO

Zona tranquilla e servita 1 camera Zona giorno separata Garage Costruzione 1998

Attualmente locato fino a giugno 2027

In zona Foro Boario, una delle aree più tranquille e ben collegate di Forlì, proponiamo in vendita bilocale in ottime condizioni, posto al piano rialzato di una palazzina del 1998.

L'immobile è attualmente locato con regolare contratto fino a giugno 2027, offrendo un'opportunità ideale per investitori in cerca di un rendimento immediato e stabile.

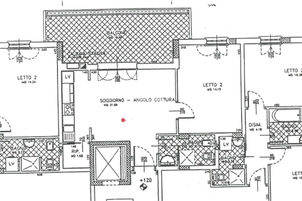
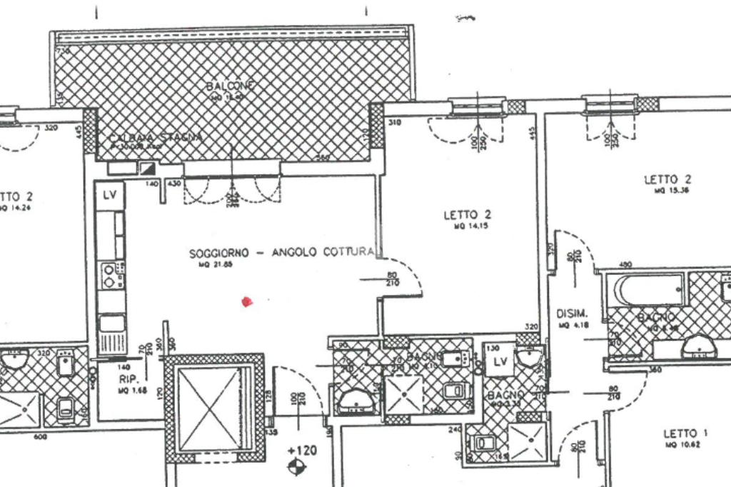
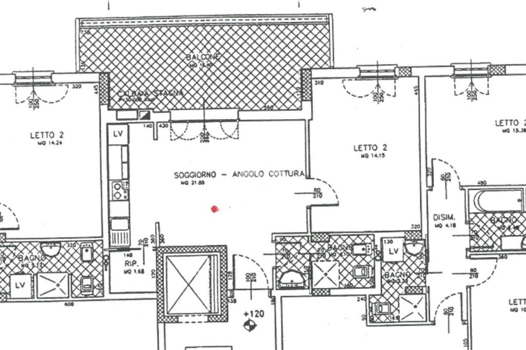
L’appartamento, di circa 54 mq, è ben distribuito con ingresso, zona giorno ben separata tra cucina e soggiorno, con accesso a un ampio e comodo balcone, camera matrimoniale e bagno.

Presenti anche un ripostiglio funzionale e un garage di proprietà al piano terra.

CARATTERISTICHE PRINCIPALI:

Piano rialzato

ampio terrazzo

Riscaldamento autonomo

Garage privato

Ottimo stato interno

Locato fino a giugno 2027 (regolare contratto)

Zona servita, silenziosa e comoda ai principali servizi

Perfetto come investimento a reddito o acquisto da mettere a frutto nel medio termine.

Scrivi un messaggio al num. whatsapp 3464358677 oppure chiamaci allo 0543.798269 o scrivici una mail su foca4 e sarai prontamente ricontattato.

DEVI ANCHE VENDERE IL TUO IMMOBILE ?

OFFRIAMO A TUTTI I NOSTRI CLIENTI:

- VALUTAZIONI GRATUITE

- CONSULENZE MUTUO GRATUITE

- ASSISTENZA FINO AL ROGITOIL PRESENTE ANNUNCIO NON COSTITUISCE ELEMENTO CONTRATTUALE .

Mostra tutto

Nelle vicinanze

Trasporto pubblico Trasporto pubblico
stazione di Forlì
stazione di Forlì
850 m
Trasporto pubblico
560 m
Forli Fs
Forli Fs
930 m
Ricariche auto elettriche Ricariche auto elettriche
Eneldrive Stazione FS
940 m
Eneldrive Mazzini
1,1 Km
Eneldrive Palazzo Di Giustizia
1,3 Km
Eneldrive Campus di Forlì
1,6 Km
Eneldrive San Domenico
1,7 Km
Scuole Scuole
Scuola Elementare "Alessandro Manzoni"
470 m
Scuole
950 m
Scuola Elementare "Bersani"
1,2 Km
Istituto tecnico "G. Saffi"
1,2 Km
Accademia InArte
1,2 Km
Farmacia Farmacia
Farmacia
330 m
Farmacia San Domenico
720 m
Farmacia comunale "Piazza delle Erbe"
1,2 Km
Farmacia Comunale
1,3 Km
Farmacia Schibuola
1,3 Km
Ospedali Ospedali
Ospedali Privati Forlì "Villa Igea"
1,7 Km
Ospedali Privati Forlì "Villa Serena"
2,2 Km
Ospedale Privato "Primus", gruppo Villa Maria
2,2 Km
Supermercati Supermercati
Conad
270 m
Lidl
810 m
Ipercoop "I Portici"
810 m
Famila
850 m
Birrino - birra vino cibo
960 m
Negozi Negozi
Break Point
800 m
Gimelli (Mountain shop)
840 m
Wendy Market
1,0 Km
Bangla Market
1,1 Km
Scarmilê
1,1 Km
Bar Bar
Vecchia Stazione
690 m
Bar
840 m
Boulevard
910 m
Controsenso
1,2 Km
Bar Mercato Coperto
1,2 Km
Ristoranti Ristoranti
Ciccio Pizza
790 m
Sakura
810 m
Ristoranti
850 m
Jungle
900 m
Gold Sushi
930 m
Mostra tutto

Caratteristiche

Rif.:
61120195
Piano:
Rialzato di 3 con ascensore
Totale piani:
3
Box:
1
Posti auto:
1
Balconi:
1
Mostra tutto
Prezzo Prezzo
€ 125.000
Rata mutuo Rata mutuo
€ 589 / mese
Spese annue Spese annue
€ 600
Proponi il tuo prezzoProponi il tuo prezzo
Immobile valutato con T·Valuta

Classe Energetica

E
E
E
E
E
E
E
E
E
EP invernale del fabbricato:
EP estiva del fabbricato:
Anno di costruzione:
1998
Riscaldamento:
Autonomo
Tipo impianto:
A radiatori
Tipo alimentazione:
Metano

Ti interessa visionare l'immobile?

Fissa un appuntamento  Fissa un appuntamento

Richiedi informazioni

Clicca su Leggi per aprire l'informativa
* Questi campi sono obbligatori

Calcola il tuo mutuo

Semplice e senza impegno
Anticipo

( % )
Mutuo

( % )

pochi semplici passi

inserisci i tuoi dati
Questionario completato
Grazie per aver richiesto un appuntamento senza impegno con un nostro Consulente del Credito e Assicurativo.

Hai inserito correttamente tutti i dati necessari e a breve riceverai una e-mail con un link da convalidare per inviare i tuoi dati.
Affiliato
Rial Immobiliare Srlu
Via Ravegnana, 232 47100 Forlì (FC)

Il nostro staff


  • Salvatore Dimo
    Affiliato

  • Ivano Brancaleoni
    Responsabile

  • Giulia Oliva
    Collaboratrice

  • Morgana Ravaglioli
    Collaboratrice
Via Ravegnana, 232 47100 Forlì (FC)
Zona: Forlì-Foro Boario-Grandi Italiani-Centro Storico-Stazione
Mostra su mappa
Orari: Lunedì - Venerdì 09:00/13:00 - 15:00/19:00 - Sabato 09:00/13:00
Affiliato
Rial Immobiliare Srlu
Via Ravegnana, 232 47100 Forlì (FC)

2026 Tecnocasa Franchising S.p.A. - P. IVA 08365160152 - Via Monte Bianco 60/A 20089 Rozzano (MI). Ogni agenzia ha un proprio titolare ed è autonoma. Privacy policy | Policy utilizzo | Cookie policy