Quadrilocale in vendita

Forlì, Piazza Francesco Petrarca - Grandi Italiani
€ 158.000
Prezzo aggiornato
4 locali 4 locali
130 Mq 130 Mq
2 bagni 2 bagni

Quadrilocale in vendita

Forlì, Piazza Francesco Petrarca - Grandi Italiani

Descrizione annuncio

APPARTAMENTO IN VENDITA – NUDA PROPRIETÀ

Piazza Francesco Petrarca – Forlì Zona Grandi Italiani – Musicisti
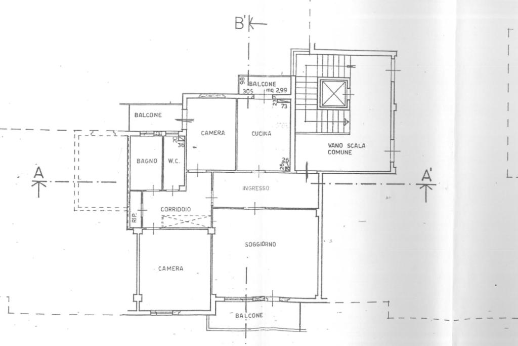
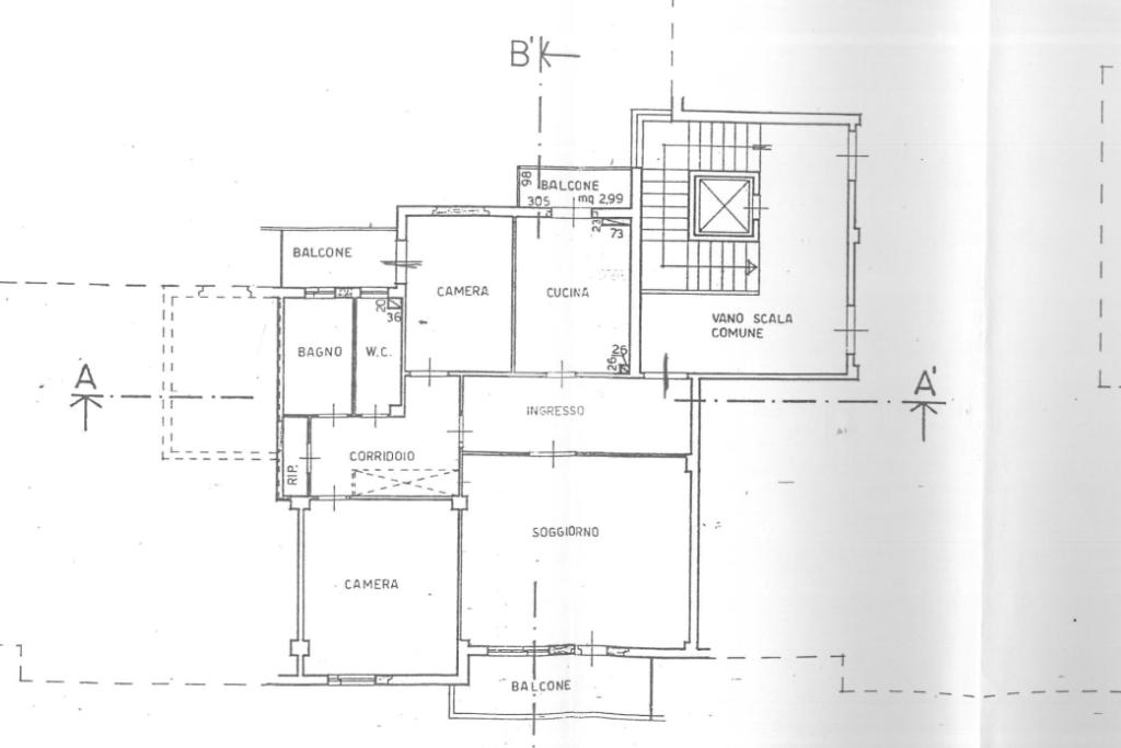
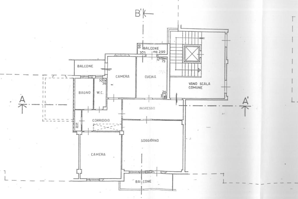
Superficie commerciale: 123 mq Calpestabile: 101 mq Piano 3° con ascensore
Garage 14 mq – Cantina

Descrizione

Proponiamo in vendita la nuda proprietà di un prestigioso appartamento situato al terzo piano con ascensore di un elegante contesto condominiale in Piazza Francesco Petrarca 5, nel cuore della rinomata zona Grandi Italiani – Musicisti di Forlì.
L’attuale proprietario manterrà l’usufrutto vitalizio.

La posizione è strategica e altamente ricercata: a pochi passi dal centro storico, comoda a negozi, mezzi pubblici, scuole e tutti i principali servizi, in un contesto residenziale tranquillo, curato e con ottima qualità della vita.

Stato e finiture:

L’immobile presenta finiture originali ma mantenute come nuove, grazie alla cura costante negli anni:

Marmo rosa nella zona giorno,Parquet perfetto nella zona notte,Infissi con doppi vetri,Appartamento luminoso e arioso, con tre balconi.

Composizione interna:

Ingresso,Cucina abitabile con balcone,Ampia zona giorno con secondo balcone,Disimpegno,Due bagni finestrati,Ripostiglio,Camera singola/doppia con balcone,Camera matrimoniale.

Completano la proprietà:

Garage di 14 mq al piano terra,Cantina al piano interrato.

Impianti:

Riscaldamento centralizzato,Aria condizionata,Infissi con doppi vetri.

Punti di forza:

Zona altamente richiesta,Condominio curato,Terzo piano con ascensore,Tripla esposizione e ottima luminosità,Spazi ampi e funzionali,Investimento ideale grazie alla formula nuda proprietà.

Chiamaci allo 0543.798269 o scrivici su whatsapp al 346.4358677 oppure invia una mail a foca4 e sarai prontamente ricontattato.

DEVI ANCHE VENDERE IL TUO IMMOBILE ?

OFFRIAMO A TUTTI I NOSTRI CLIENTI:

- VALUTAZIONI GRATUITE

- CONSULENZE MUTUO GRATUITE

- ASSISTENZA FINO AL ROGITO

- CONSULENZA TECNICA

IL PRESENTE ANNUNCIO NON COSTITUISCE ELEMENTO CONTRATTUALE.

Mostra tutto

Nelle vicinanze

Trasporto pubblico Trasporto pubblico
stazione di Forlì
stazione di Forlì
610 m
Trasporto pubblico
390 m
Box8
Box8
430 m
Ricariche auto elettriche Ricariche auto elettriche
Eneldrive Stazione FS
530 m
Eneldrive Campus di Forlì
1,1 Km
Eneldrive Palazzo Di Giustizia
1,1 Km
Eneldrive Mazzini
1,2 Km
Eneldrive San Domenico
1,6 Km
Scuole Scuole
Istituto "Ivo Oliveti"
150 m
Istituto Tecnico Industriale Statale "Guglielmo Marconi"
330 m
Liceo Classico Statale "Giovan Battista Morgagni"
350 m
Scuola Media "Palmezzano"
370 m
Scuola Elementare "De Amicis"
380 m
Farmacia Farmacia
Farmacia Malpezzi
200 m
Farmacia
320 m
Farmacia San Domenico
870 m
Farmacia Lombardi
890 m
Farmacia Comunale
1,2 Km
Ospedali Ospedali
Ospedali Privati Forlì "Villa Igea"
270 m
Ospedali Privati Forlì "Villa Serena"
1,8 Km
Ospedale Privato "Primus", gruppo Villa Maria
3,0 Km
Supermercati Supermercati
Famila
290 m
Conad Stadium
480 m
Ipercoop "I Portici"
790 m
Casa del Contadino
830 m
Conad City
860 m
Negozi Negozi
Kimi Store
650 m
Corso della Repubblica 150
660 m
Evoluzione
740 m
Il Trifoglio
750 m
Novantanovemania
870 m
Bar Bar
Bar
510 m
Pikok Cafè
540 m
QCorner
630 m
Casa del Gelato
640 m
mybar
650 m
Ristoranti Ristoranti
Pizzeria-Bar "Cubana"
340 m
Ristoranti
490 m
QBio
540 m
Pizzeria del Corso
580 m
Rosticceria Casali
620 m
Mostra tutto

Caratteristiche

Rif.:
61153111
Piano:
3 di 4 con ascensore (Piano alto)
Box:
1
Balconi:
3
Terrazzi:
3
Camere da letto:
2
Mostra tutto
Prezzo Prezzo
€ 158.000
Rata mutuo Rata mutuo
€ 744 / mese
Spese annue Spese annue
€ 3.000
Proponi il tuo prezzoProponi il tuo prezzo

Classe Energetica

E
E
E
E
E
E
E
E
E
EP invernale del fabbricato:
EP estiva del fabbricato:
Anno di costruzione:
1966
Riscaldamento:
Centralizzato
Tipo impianto:
A radiatori
Tipo alimentazione:
Metano

Prezzo ridotto di €1 (9%%)

Ti interessa visionare l'immobile?

Fissa un appuntamento  Fissa un appuntamento

Richiedi informazioni

Clicca su Leggi per aprire l'informativa
* Questi campi sono obbligatori

Calcola il tuo mutuo

Semplice e senza impegno
Anticipo

( % )
Mutuo

( % )

pochi semplici passi

inserisci i tuoi dati
Questionario completato
Grazie per aver richiesto un appuntamento senza impegno con un nostro Consulente del Credito e Assicurativo.

Hai inserito correttamente tutti i dati necessari e a breve riceverai una e-mail con un link da convalidare per inviare i tuoi dati.
Affiliato
Rial Immobiliare Srlu
Via Ravegnana, 232 47100 Forlì (FC)

Il nostro staff


  • Salvatore Dimo
    Affiliato

  • Ivano Brancaleoni
    Responsabile

  • Giulia Oliva
    Collaboratrice

  • Morgana Ravaglioli
    Collaboratrice
Via Ravegnana, 232 47100 Forlì (FC)
Zona: Forlì-Foro Boario-Grandi Italiani-Centro Storico-Stazione
Mostra su mappa
Orari: Lunedì - Venerdì 09:00/13:00 - 15:00/19:00 - Sabato 09:00/13:00
Affiliato
Rial Immobiliare Srlu
Via Ravegnana, 232 47100 Forlì (FC)

2026 Tecnocasa Franchising S.p.A. - P. IVA 08365160152 - Via Monte Bianco 60/A 20089 Rozzano (MI). Ogni agenzia ha un proprio titolare ed è autonoma. Privacy policy | Policy utilizzo | Cookie policy