Casa indipendente in vendita

Forlì, Via selo - Foro Boario
€ 520.000
Prezzo aggiornato
7 locali 7 locali
346 Mq 346 Mq
3 bagni 3 bagni

Casa indipendente in vendita

Forlì, Via selo - Foro Boario

Descrizione annuncio

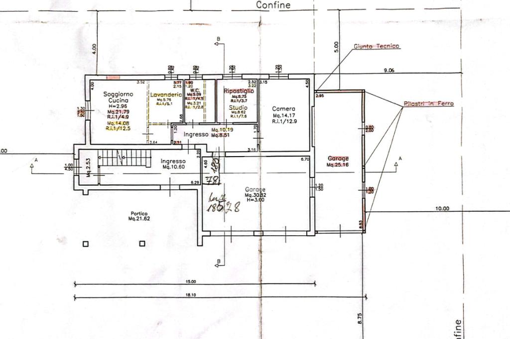
La casa indipendente bifamiliare situata nel quartiere Foro Boario rappresenta un'opportunità unica per chi cerca comfort e praticità in una delle zone più ambite della città

Questa straordinaria proprietà, libera sui quattro lati, offre due ampie abitazioni su due livelli distinti.

Al piano terra si trova un accogliente appartamento con due camere da letto e un garage spazioso in grado di ospitare due auto di grandi dimensioni.

Al primo piano, l'appartamento padronale si distingue per la sua eleganza, con un grande salone dotato di camino, tre camere da letto, due bagni e una cucina con tinello che si affaccia sul balcone.

Costruito negli anni '80, l'immobile è stato realizzato con materiali di alta qualità come marmi e graniti, e si presenta in condizioni eccellenti grazie alla costante manutenzione.

Completa la proprietà un ampio cortile privato, ideale per momenti di relax all'aria aperta, e un magazzino in legno che funge da deposito o officina.

Questa proposta è perfetta per chi desidera vivere in una casa indipendente con tutti i comfort e la possibilità di ospitare due nuclei familiari.

- INDIPENDENTE

- BIFAMILARE

- CORTE ESCLUSIVA

- RIFINITURE DI PREGIO

- GARAGE + SERVIZI

Contattaci per fissare il tuo appuntamento con IVANO al num. whatsapp 3464358677 oppure allo 0543.798269 in alternativa scrivici una mail su foca4 e sarai prontamente ricontattato

DEVI ANCHE VENDERE IL TUO IMMOBILE ?

OFFRIAMO A TUTTI I NOSTRI CLIENTI:

- VALUTAZIONI GRATUITE

- CONSULENZE MUTUO GRATUITE

- ASSISTENZA FINO AL ROGITO

- CONSULENZA TECNICA

IL PRESENTE ANNUNCIO NON COSTITUISCE ELEMENTO CONTRATTUALE .

Mostra tutto

Nelle vicinanze

Trasporto pubblico Trasporto pubblico
stazione di Forlì
stazione di Forlì
1,4 Km
Trasporto pubblico
920 m
Piazza Saffi B
Piazza Saffi B
1,1 Km
Ricariche auto elettriche Ricariche auto elettriche
Eneldrive Mazzini
980 m
Eneldrive Palazzo Di Giustizia
1,2 Km
Eneldrive San Domenico
1,3 Km
Eneldrive Stazione FS
1,5 Km
Eneldrive Campus di Forlì
1,5 Km
Scuole Scuole
Accademia InArte
360 m
Scuola Elementare "Alessandro Manzoni"
780 m
Scuole
800 m
Istituto tecnico "G. Saffi"
850 m
Istituto Musicale Angelo Masini
1,1 Km
Farmacia Farmacia
Farmacia comunale "Piazza delle Erbe"
830 m
Farmacia
980 m
Farmacia San Domenico
1,1 Km
Farmacia Schibuola
1,1 Km
Farmacia Comunale
1,1 Km
Ospedali Ospedali
Ospedali Privati Forlì "Villa Serena"
1,8 Km
Ospedali Privati Forlì "Villa Igea"
2,2 Km
Ospedale Privato "Primus", gruppo Villa Maria
3,0 Km
Supermercati Supermercati
Lidl
510 m
Conad
590 m
Famila
760 m
Ipercoop "I Portici"
1,2 Km
Eataly
1,2 Km
Negozi Negozi
Break Point
680 m
Bangla Market
740 m
Wendy Market
750 m
Scarmilê
750 m
Panificio Aurora
810 m
Bar Bar
Boulevard
580 m
Vecchia Stazione
640 m
Bar Mercato Coperto
860 m
Bar
880 m
Nati a Forlì
890 m
Ristoranti Ristoranti
Jungle
490 m
Pizzeria "Le Macine"
640 m
Ciccio Pizza
720 m
Un Angolo di Germania
830 m
Casa Hirta
830 m
Mostra tutto

Caratteristiche

Rif.:
60986527
Piano:
1 di 3 (Piano basso)
Box:
2
Posti auto:
2
Balconi:
2
Terrazzi:
2
Mostra tutto
Prezzo Prezzo
€ 520.000
Rata mutuo Rata mutuo
€ 2.382 / mese
Spese annue Spese annue
€ 0
Proponi il tuo prezzoProponi il tuo prezzo
Immobile valutato con TecnoValore

Classe Energetica

F
F
F
F
F
F
F
F
F
EP invernale del fabbricato:
EP estiva del fabbricato:
Anno di costruzione:
1973
Riscaldamento:
Autonomo
Tipo impianto:
A radiatori
Tipo alimentazione:
Metano

Prezzo ridotto di €1 (11%%)

Ti interessa visionare l'immobile?

Fissa un appuntamento  Fissa un appuntamento

Richiedi informazioni

* Questi campi sono obbligatori

Calcola il tuo mutuo

Semplice e senza impegno
Anticipo

( % )
Mutuo

( % )

pochi semplici passi

inserisci i tuoi dati
Questionario completato
Grazie per aver richiesto un appuntamento senza impegno con un nostro Consulente del Credito e Assicurativo.

Hai inserito correttamente tutti i dati necessari e a breve riceverai una e-mail con un link da convalidare per inviare i tuoi dati.
Affiliato
Rial Immobiliare Srlu
Via Ravegnana, 232 47100 Forlì (FC)

Il nostro staff


  • Salvatore Dimo
    Affiliato

  • Ivano Brancaleoni
    Responsabile

  • Giulia Oliva
    Collaboratrice

  • Morgana Ravaglioli
    Collaboratrice
Via Ravegnana, 232 47100 Forlì (FC)
Zona: Forlì-Foro Boario-Grandi Italiani-Centro Storico-Stazione
Mostra su mappa
Orari: Lunedì - Venerdì 09:00/13:00 - 15:00/19:00 - Sabato 09:00/13:00
Affiliato
Rial Immobiliare Srlu
Via Ravegnana, 232 47100 Forlì (FC)

2025 Tecnocasa Franchising S.p.A. - P. IVA 08365160152 - Via Monte Bianco 60/A 20089 Rozzano (MI). Ogni agenzia ha un proprio titolare ed è autonoma. Privacy policy | Policy utilizzo | Cookie policy