Casa indipendente in vendita

Forlì, Via tavullia - Cava
€ 160.000
5 locali 5 locali
90 Mq 90 Mq
2 bagni 2 bagni

Casa indipendente in vendita

Forlì, Via tavullia - Cava

Descrizione annuncio

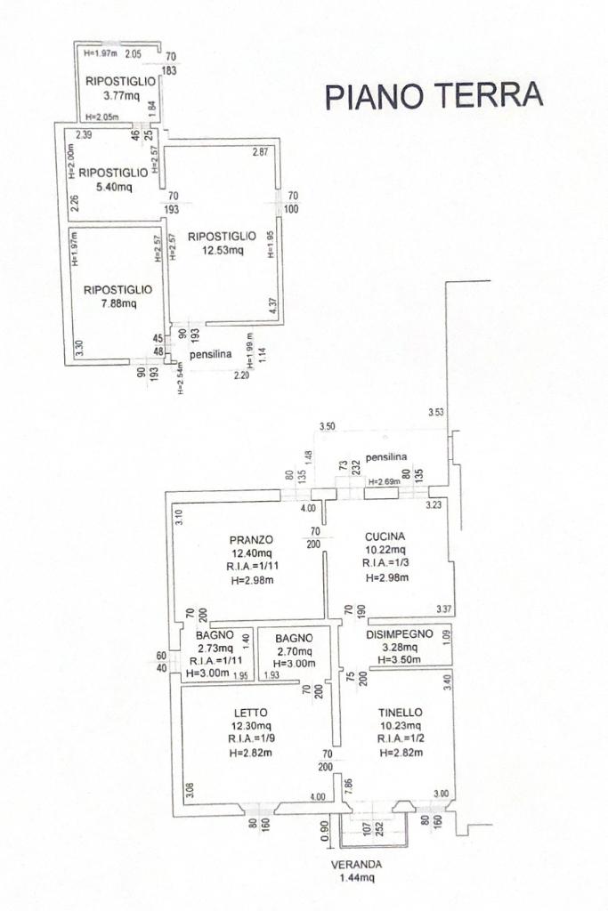
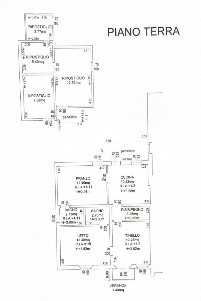
In vendita a Forlì – Zona Cava Casa indipendente abbinata con cortile privato e fabbricato accessorio

Proponiamo in vendita casa indipendente abbinata su un lato, situata in zona tranquilla e residenziale, libera da subito e abitabile, ideale per chi cerca una soluzione con spazi esterni e versatili.

L'immobile, costruito negli anni ’60, è disposto su un lotto di circa 400 mq e si presenta in buone condizioni generali.

Composizione:

Appartamento principale composto da:Due camere da lettoDue bagniSalaCucina abitabileCortile privato di generose dimensioniCorpo di fabbrica separato di circa 30 mq, attualmente adibito a ripostiglio, con possibilità di utilizzo come:DepositoTavernettaStudio o laboratorioSpazio multifunzionale personalizzabile secondo le esigenze

Caratteristiche principali:

Ingresso indipendenteLibera subitoSpazi esterni privati e sfruttabiliOttimo potenziale per famiglie, professionisti o amanti del fai-da-te

Una soluzione solida e funzionale, perfetta per chi cerca indipendenza, comodità e versatilità in un contesto tranquillo, ma ben collegato.

Contattaci per maggiori informazioni o per fissare una visita.

Mostra tutto

Nelle vicinanze

Trasporto pubblico Trasporto pubblico
Trasporto pubblico
860 m
Sapinia
Sapinia
1,7 Km
Ricariche auto elettriche Ricariche auto elettriche
Conad Superstore La Cava
530 m
Scuole Scuole
Scuole
450 m
Accademia InArte
2,7 Km
Istituto Musicale Angelo Masini
2,8 Km
Farmacia Farmacia
Farmacia Camporesi
2,7 Km
Supermercati Supermercati
Conad
610 m
EuroSpin
1,0 Km
Aldi
1,5 Km
Coop
2,3 Km
Negozi Negozi
Merceria "Magdalena"
2,4 Km
Bar Bar
Bar Chiosco Sirotti Rosanna
2,2 Km
Bar
2,3 Km
Roby&Roy
2,4 Km
Ristoranti Ristoranti
La casa rusticale dei cavalieri templari
210 m
Dietro la porta
2,3 Km
Trattoria Al Ponte
2,5 Km
Pestapepe
2,6 Km
Passaparola
2,7 Km
Mostra tutto

Caratteristiche

Rif.:
61126915
Piano:
1 di 1 (Piano terra)
Posti auto:
2
Camere da letto:
2
Arredamento:
Assente
Condizionamento:
Assente
Mostra tutto
Prezzo Prezzo
€ 160.000
Rata mutuo Rata mutuo
€ 733 / mese
Spese annue Spese annue
€ 0
Proponi il tuo prezzoProponi il tuo prezzo

Classe Energetica

G
G
G
G
G
G
G
G
G
EP invernale del fabbricato:
EP estiva del fabbricato:
Anno di costruzione:
1960
Riscaldamento:
Autonomo
Tipo impianto:
A radiatori
Tipo alimentazione:
Metano

Ti interessa visionare l'immobile?

Fissa un appuntamento  Fissa un appuntamento

Richiedi informazioni

* Questi campi sono obbligatori

Calcola il tuo mutuo

Semplice e senza impegno
Anticipo

( % )
Mutuo

( % )

pochi semplici passi

inserisci i tuoi dati
Questionario completato
Grazie per aver richiesto un appuntamento senza impegno con un nostro Consulente del Credito e Assicurativo.

Hai inserito correttamente tutti i dati necessari e a breve riceverai una e-mail con un link da convalidare per inviare i tuoi dati.
Affiliato
Rial Immobiliare Srlu
Via Ravegnana, 232 47100 Forlì (FC)

Il nostro staff


  • Salvatore Dimo
    Affiliato

  • Ivano Brancaleoni
    Responsabile

  • Giulia Oliva
    Collaboratrice

  • Morgana Ravaglioli
    Collaboratrice
Via Ravegnana, 232 47100 Forlì (FC)
Zona: Forlì-Foro Boario-Grandi Italiani-Centro Storico-Stazione
Mostra su mappa
Orari: Lunedì - Venerdì 09:00/13:00 - 15:00/19:00 - Sabato 09:00/13:00
Affiliato
Rial Immobiliare Srlu
Via Ravegnana, 232 47100 Forlì (FC)

2025 Tecnocasa Franchising S.p.A. - P. IVA 08365160152 - Via Monte Bianco 60/A 20089 Rozzano (MI). Ogni agenzia ha un proprio titolare ed è autonoma. Privacy policy | Policy utilizzo | Cookie policy