Casa indipendente in vendita

Forlì, via tavullia
€ 290.000
6 locali 6 locali
162 Mq 162 Mq
2 bagni 2 bagni

Casa indipendente in vendita

Forlì, via tavullia

Descrizione annuncio

Zona Cava: casa indipendente abbinata

Nel quartiere Cava di Forlì, in una zona residenziale tranquilla e ben servita, proponiamo in vendita casa indipendente abbinata su lotto di circa 400 mq, con portico e garage.

Costruita un mattone alla volta dalla famiglia attualemente proprietaria , questa casa racconta una storia di amore, dedizione e vita vissuta. Un’abitazione solida, accogliente e asciutta, dove ogni angolo profuma di casa.

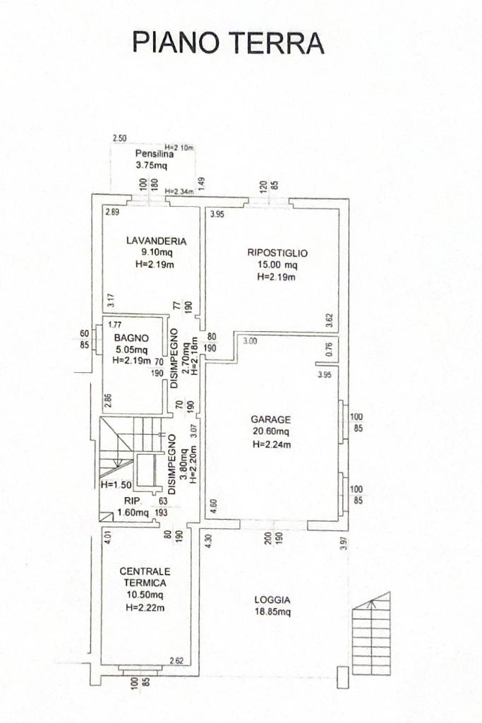
L’immobile si sviluppa su due piani, al piano terra si trovano il cortile privato, un comodo portico, il garage e i servizi tra cui lavanderia, bagno, tavernetta e un'altra camera.

Al piano prima si trova l'appartamento composto da ingresso, cucina abitabile, ampio soggiorno di 30 mq, due camere il bagno finestrato

Caratteristiche principali:

Superficie lotto: circa 400 mq

casa indiependente (con cortile privato e garage)

Ampio giardino piantumato, ideale per momenti di relax e convivialità

Ingresso carrabile e posti auto interni

Zona comoda ai servizi, ma riservata e silenziosa

Perfetta per famiglie, per chi vuole vivere vicino ai propri cari mantenendo indipendenza, o per chi sogna una grande casa con spazi da personalizzare.

Scrivi un messaggio al num. whatsapp 3464358677 oppure chiamaci allo 0543.798269 o scrivici una mail su foca4 e sarai prontamente ricontattato.

DEVI ANCHE VENDERE IL TUO IMMOBILE ?

OFFRIAMO A TUTTI I NOSTRI CLIENTI:

- VALUTAZIONI GRATUITE

- CONSULENZE MUTUO GRATUITE

- ASSISTENZA FINO AL ROGITO

- CONSULENZA TECNICA

IL PRESENTE ANNUNCIO NON COSTITUISCE ELEMENTO CONTRATTUALE .

Mostra tutto

Nelle vicinanze

Trasporto pubblico Trasporto pubblico
Trasporto pubblico
860 m
Sapinia
Sapinia
1,7 Km
Ricariche auto elettriche Ricariche auto elettriche
Conad Superstore La Cava
530 m
Scuole Scuole
Scuole
450 m
Accademia InArte
2,7 Km
Istituto Musicale Angelo Masini
2,8 Km
Farmacia Farmacia
Farmacia Camporesi
2,7 Km
Supermercati Supermercati
Conad
610 m
EuroSpin
1,0 Km
Aldi
1,5 Km
Coop
2,3 Km
Negozi Negozi
Merceria "Magdalena"
2,4 Km
Bar Bar
Bar Chiosco Sirotti Rosanna
2,2 Km
Bar
2,3 Km
Roby&Roy
2,4 Km
Ristoranti Ristoranti
La casa rusticale dei cavalieri templari
210 m
Dietro la porta
2,3 Km
Trattoria Al Ponte
2,5 Km
Pestapepe
2,6 Km
Passaparola
2,7 Km
Mostra tutto

Caratteristiche

Rif.:
61129032
Piano:
1 di 2 (Piano terra con giardino)
Box:
1
Posti auto:
2
Balconi:
1
Terrazzi:
1
Mostra tutto
Prezzo Prezzo
€ 290.000
Rata mutuo Rata mutuo
€ 1.367 / mese
Spese annue Spese annue
€ 0
Proponi il tuo prezzoProponi il tuo prezzo

Classe Energetica

E
E
E
E
E
E
E
E
E
EP invernale del fabbricato:
EP estiva del fabbricato:
Anno di costruzione:
1970
Riscaldamento:
Autonomo
Tipo impianto:
A radiatori
Tipo alimentazione:
Metano

Ti interessa visionare l'immobile?

Fissa un appuntamento  Fissa un appuntamento

Richiedi informazioni

Clicca su Leggi per aprire l'informativa
* Questi campi sono obbligatori

Calcola il tuo mutuo

Semplice e senza impegno
Anticipo

( % )
Mutuo

( % )

pochi semplici passi

inserisci i tuoi dati
Questionario completato
Grazie per aver richiesto un appuntamento senza impegno con un nostro Consulente del Credito e Assicurativo.

Hai inserito correttamente tutti i dati necessari e a breve riceverai una e-mail con un link da convalidare per inviare i tuoi dati.
Affiliato
Rial Immobiliare Srlu
Via Ravegnana, 232 47100 Forlì (FC)

Il nostro staff


  • Salvatore Dimo
    Affiliato

  • Ivano Brancaleoni
    Responsabile

  • Giulia Oliva
    Collaboratrice

  • Morgana Ravaglioli
    Collaboratrice
Via Ravegnana, 232 47100 Forlì (FC)
Zona: Forlì-Foro Boario-Grandi Italiani-Centro Storico-Stazione
Mostra su mappa
Orari: Lunedì - Venerdì 09:00/13:00 - 15:00/19:00 - Sabato 09:00/13:00
Affiliato
Rial Immobiliare Srlu
Via Ravegnana, 232 47100 Forlì (FC)

2025 Tecnocasa Franchising S.p.A. - P. IVA 08365160152 - Via Monte Bianco 60/A 20089 Rozzano (MI). Ogni agenzia ha un proprio titolare ed è autonoma. Privacy policy | Policy utilizzo | Cookie policy