Bifamiliare in vendita

Forlì, Viale Bologna - Cava
€ 430.000
Prezzo aggiornato
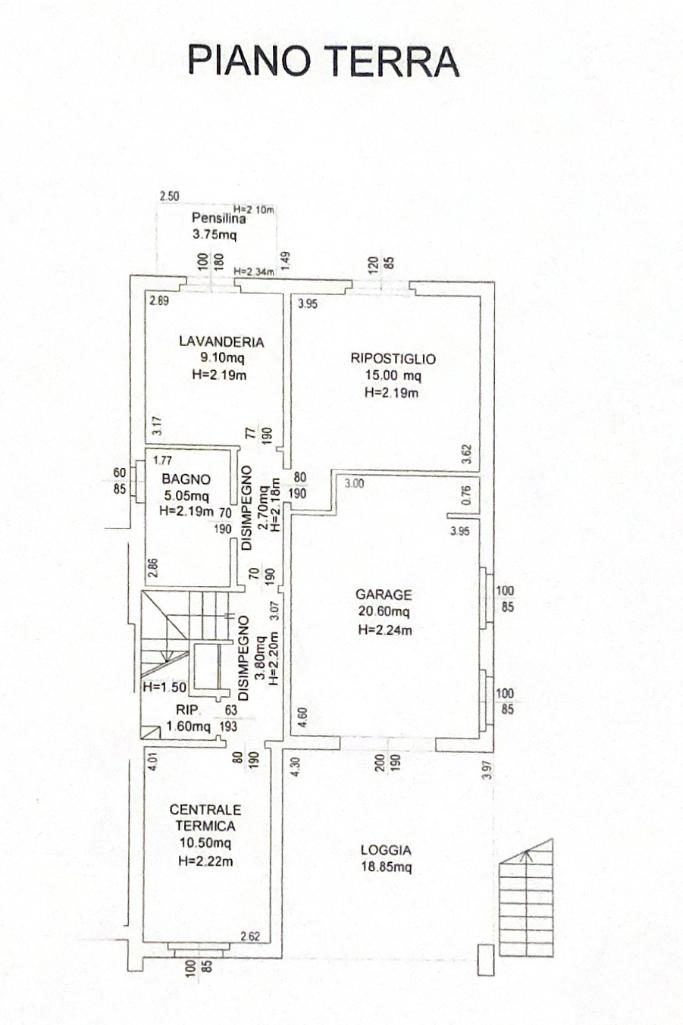
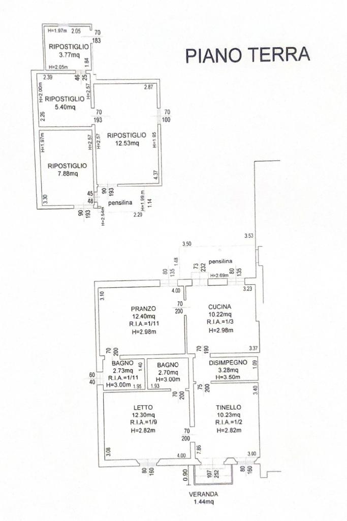
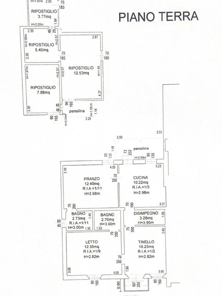
231 Mq 231 Mq
3 bagni 3 bagni

Bifamiliare in vendita

Forlì, Viale Bologna - Cava

Descrizione annuncio

Bifamiliare con depandance e giardino-Zona Cava

Nel cuore del quartiere Cava di Forlì, in una zona residenziale tranquilla e ben servita, proponiamo in vendita una splendida bifamiliare su lotto di circa 800 mq, con dependance indipendente sul retro.

Costruita un mattone alla volta da una famiglia romagnola, questa casa racconta una storia di amore, dedizione e vita vissuta. Un’abitazione solida e accogliente, dove ogni angolo profuma di casa.

L’immobile si compone di due appartamenti distinti, ideali per due nuclei familiari, genitori e figli o per chi desidera coniugare abitazione e investimento. Tuttavia, la struttura si presta anche ad essere vissuta come un’unica grande casa unifamiliare, grazie a una distribuzione intelligente degli spazi.

Caratteristiche principali:

Superficie lotto: circa 800 mq

Due appartamenti indipendenti (con possibilità di unificarli)

Dependance sul retro, perfetta come studio, taverna o mini-appartamento per ospiti

Ampio giardino piantumato, ideale per momenti di relax e convivialità

Ingresso carrabile e posti auto interni

Zona comoda ai servizi, ma riservata e silenziosa

Perfetta per famiglie, per chi vuole vivere vicino ai propri cari mantenendo indipendenza, o per chi sogna una grande casa con spazi da personalizzare.

Scrivi un messaggio al num. whatsapp 3464358677 oppure chiamaci allo 0543.798269 o scrivici una mail su foca4 e sarai prontamente ricontattato.

DEVI ANCHE VENDERE IL TUO IMMOBILE ?

OFFRIAMO A TUTTI I NOSTRI CLIENTI:

- VALUTAZIONI GRATUITE

- CONSULENZE MUTUO GRATUITE

- ASSISTENZA FINO AL ROGITO

- CONSULENZA TECNICA

IL PRESENTE ANNUNCIO NON COSTITUISCE ELEMENTO CONTRATTUALE .

Mostra tutto

Nelle vicinanze

Trasporto pubblico Trasporto pubblico
Sapinia
Sapinia
1,3 Km
Trasporto pubblico
1,3 Km
Ricariche auto elettriche Ricariche auto elettriche
Conad Superstore La Cava
150 m
Eneldrive San Domenico
2,6 Km
Eneldrive Mazzini
3,0 Km
Scuole Scuole
Scuole
100 m
Accademia InArte
2,4 Km
Istituto Musicale Angelo Masini
2,4 Km
Istituto tecnico "G. Saffi"
2,7 Km
Scuola "Diego Fabbri"
2,7 Km
Farmacia Farmacia
Farmacia Camporesi
2,2 Km
Farmacia comunale "Piazza delle Erbe"
2,7 Km
Farmacia Schibuola
2,9 Km
Farmacia Natalini
2,9 Km
Farmacia Comunale
3,0 Km
Ospedali Ospedali
Ospedali Privati Forlì "Villa Serena"
2,6 Km
Pronto Soccorso
3,0 Km
Padiglione Allende
3,0 Km
Supermercati Supermercati
Conad
200 m
EuroSpin
640 m
Aldi
1,1 Km
Coop
1,8 Km
Lidl
2,9 Km
Negozi Negozi
Merceria "Magdalena"
1,9 Km
SCOUT
2,6 Km
Panificio Aurora
2,7 Km
Negozi
2,7 Km
OVS
2,7 Km
Bar Bar
Bar Chiosco Sirotti Rosanna
1,8 Km
Bar
1,9 Km
Bar Mercato Coperto
2,7 Km
Nati a Forlì
2,8 Km
Barottica
2,8 Km
Ristoranti Ristoranti
La casa rusticale dei cavalieri templari
680 m
Dietro la porta
1,9 Km
Trattoria Al Ponte
2,0 Km
Pestapepe
2,2 Km
Ruyi
2,2 Km
Mostra tutto

Caratteristiche

Rif.:
61116659
Piano:
Terra con giardino di 2
Totale piani:
2
Box:
1
Posti auto:
1
Balconi:
1
Mostra tutto
Prezzo Prezzo
€ 430.000
Rata mutuo Rata mutuo
€ 1.970 / mese
Spese annue Spese annue
€ 0
Proponi il tuo prezzoProponi il tuo prezzo

Classe Energetica

F
F
F
F
F
F
F
F
F
EP invernale del fabbricato:
EP estiva del fabbricato:
Anno di costruzione:
1960
Riscaldamento:
Autonomo
Tipo impianto:
A radiatori
Tipo alimentazione:
Metano

Prezzo ridotto di €1 (5%%)

Ti interessa visionare l'immobile?

Fissa un appuntamento  Fissa un appuntamento

Richiedi informazioni

* Questi campi sono obbligatori

Calcola il tuo mutuo

Semplice e senza impegno
Anticipo

( % )
Mutuo

( % )

pochi semplici passi

inserisci i tuoi dati
Questionario completato
Grazie per aver richiesto un appuntamento senza impegno con un nostro Consulente del Credito e Assicurativo.

Hai inserito correttamente tutti i dati necessari e a breve riceverai una e-mail con un link da convalidare per inviare i tuoi dati.
Affiliato
Rial Immobiliare Srlu
Via Ravegnana, 232 47100 Forlì (FC)

Il nostro staff


  • Salvatore Dimo
    Affiliato

  • Ivano Brancaleoni
    Responsabile

  • Giulia Oliva
    Collaboratrice

  • Morgana Ravaglioli
    Collaboratrice
Via Ravegnana, 232 47100 Forlì (FC)
Zona: Forlì-Foro Boario-Grandi Italiani-Centro Storico-Stazione
Mostra su mappa
Orari: Lunedì - Venerdì 09:00/13:00 - 15:00/19:00 - Sabato 09:00/13:00
Affiliato
Rial Immobiliare Srlu
Via Ravegnana, 232 47100 Forlì (FC)

2025 Tecnocasa Franchising S.p.A. - P. IVA 08365160152 - Via Monte Bianco 60/A 20089 Rozzano (MI). Ogni agenzia ha un proprio titolare ed è autonoma. Privacy policy | Policy utilizzo | Cookie policy