Casa indipendente in vendita

Predappio, Via raffaello sanzio
€ 155.000
3 locali 3 locali
85 Mq 85 Mq
1 bagno 1 bagno

Casa indipendente in vendita

Predappio, Via raffaello sanzio

Descrizione annuncio

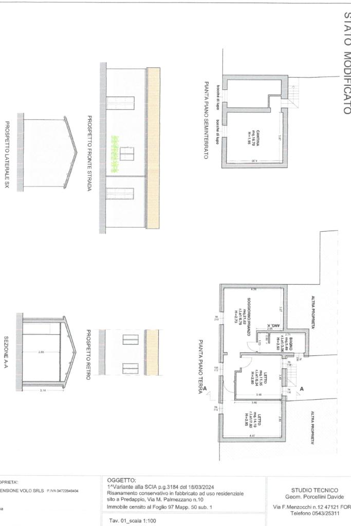
PREDAPPIO CENTRO CASA INDIPENDENTE RISTRUTTURATA CON CORTILE PRIVATO

In posizione tranquilla e riservata, proponiamo in vendita una casa indipendente in fase di ristrutturazione, ideale per chi desidera un’abitazione moderna, efficiente e pronta all’uso.

L’immobile, disposto interamente al piano terra, offre una superficie di circa 60 mq calpestabili, così suddivisi:

Luminoso soggiorno con angolo cottura,2 camere da letto,1 bagno finestrato,2 cortili privati, perfetti per momenti di relax all’aperto, area barbecue o spazio lavanderia.

La ristrutturazione in corso comprende:

rifacimento e impermeabilizzazione e coibentazione del tetto,rinnovo completo degli impianti,sostituzione di tutti gli infissi,nuova pavimentazione.

Grazie a questi interventi, l’abitazione garantirà comfort abitativo ed efficienza energetica, con classe A1 già prevista.

Contattaci per fissare il tuo appuntamento, invia un messaggio al numero WhatsAPP 3464358677 oppure chiama allo 0543798269 in alternativa scrivici una mail su foca4 e sarai prontamente ricontattato.

DEVI ANCHE VENDERE IL TUO IMMOBILE?

OFFRIAMO A TUTTI I NOSTRI CLIENTI:

- PERMUTE

- VALUTAZIONI GRATUITE

- CONSULENZE MUTUO GRATUITE

- ASSISTENZA FINO AL ROGITO

IL PRESENTE ANNUNCIO NON COSTITUISCE ELEMENTO CONTRATTUALE

Mostra tutto

Nelle vicinanze

Trasporto pubblico Trasporto pubblico
Predappio
Predappio
320 m
Trasporto pubblico
1,9 Km
Scuole Scuole
Scuole
200 m
Farmacia Farmacia
Farmacia
470 m
Supermercati Supermercati
Conad
100 m
Negozi Negozi
Panificio Bassini
20 m
Ristoranti Ristoranti
Gambacorta anni 20
340 m
Ristoranti
350 m
Locanda Appennino
2,1 Km
Mostra tutto

Caratteristiche

Rif.:
61106134
Piano:
1 di 1 (Piano terra con giardino)
Camere da letto:
2
Arredamento:
Assente
Condizionamento:
Predisposizione impianto
Ascensore:
No
Mostra tutto
Prezzo Prezzo
€ 155.000
Rata mutuo Rata mutuo
€ 731 / mese
Spese annue Spese annue
€ 0
Proponi il tuo prezzoProponi il tuo prezzo

Classe Energetica

A1
A1
A1
A1
A1
A1
A1
A1
A1
EP invernale del fabbricato:
EP estiva del fabbricato:
Anno di costruzione:
2025
Riscaldamento:
Autonomo
Tipo impianto:
A radiatori
Tipo alimentazione:
Metano

Ti interessa visionare l'immobile?

Fissa un appuntamento  Fissa un appuntamento

Richiedi informazioni

Clicca su Leggi per aprire l'informativa
* Questi campi sono obbligatori

Calcola il tuo mutuo

Semplice e senza impegno
Anticipo

( % )
Mutuo

( % )

pochi semplici passi

inserisci i tuoi dati
Questionario completato
Grazie per aver richiesto un appuntamento senza impegno con un nostro Consulente del Credito e Assicurativo.

Hai inserito correttamente tutti i dati necessari e a breve riceverai una e-mail con un link da convalidare per inviare i tuoi dati.
Affiliato
Rial Immobiliare Srlu
Via Ravegnana, 232 47100 Forlì (FC)

Il nostro staff


  • Salvatore Dimo
    Affiliato

  • Ivano Brancaleoni
    Responsabile

  • Giulia Oliva
    Collaboratrice

  • Morgana Ravaglioli
    Collaboratrice
Via Ravegnana, 232 47100 Forlì (FC)
Zona: Forlì-Foro Boario-Grandi Italiani-Centro Storico-Stazione
Mostra su mappa
Orari: Lunedì - Venerdì 09:00/13:00 - 15:00/19:00 - Sabato 09:00/13:00
Affiliato
Rial Immobiliare Srlu
Via Ravegnana, 232 47100 Forlì (FC)

2025 Tecnocasa Franchising S.p.A. - P. IVA 08365160152 - Via Monte Bianco 60/A 20089 Rozzano (MI). Ogni agenzia ha un proprio titolare ed è autonoma. Privacy policy | Policy utilizzo | Cookie policy